近日,正宇科创公司施工的招商和平里项目CSM止水帷幕顺利完工,项目位于武汉市江岸区沿江大道与大兴路交汇处。主要建设5栋40层以上超高层住宅、配套及整体1~2层地下室。

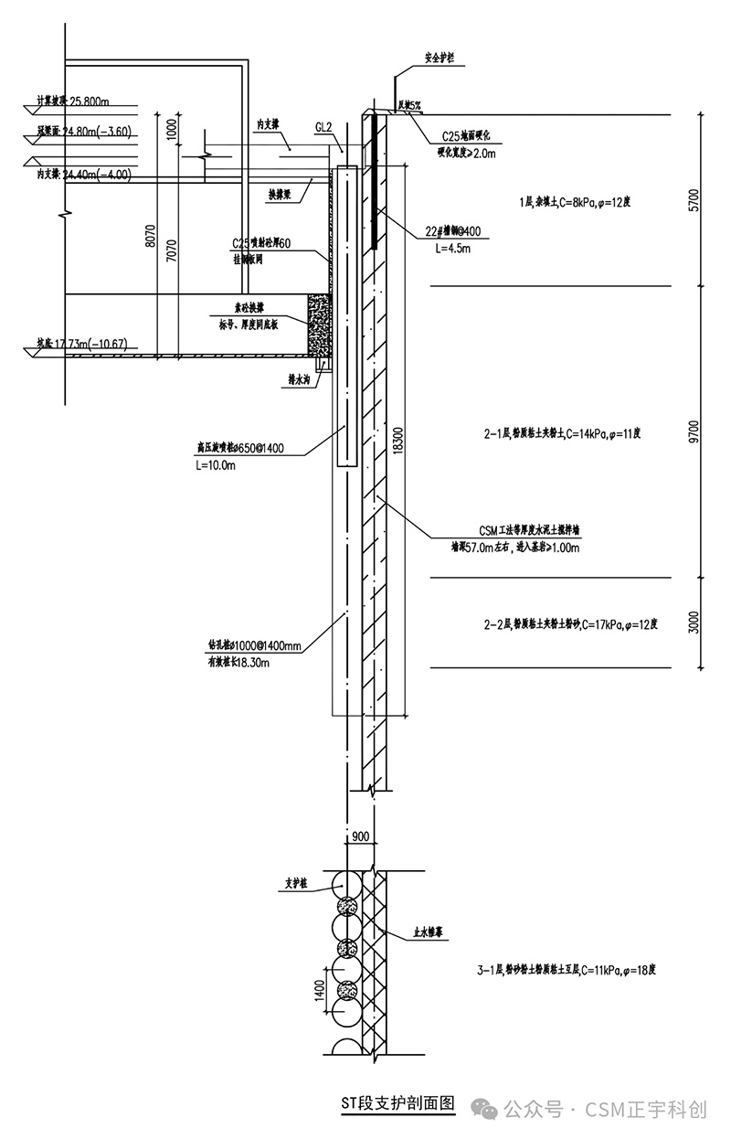
项目基坑周长565m,基坑开挖面积约19620m²,基坑最大开挖深度10.67m。基坑支护采用排桩+一层钢筋混凝土内支撑、悬臂桩排联合支护。支护桩后设落底式CSM止水帷幕,CSM最大深度57m,需入基岩≥1m成墙。

项目周边环境极为紧张,基坑西侧为两栋尚未拆迁的大楼,北侧紧邻天然基础的老旧住宅小区,周边建构筑物异常敏感,CSM作为一种在低气压、低浆压条件下的原位搅拌施工工艺,能最大限度地减少施工及降水对周边建筑物的影响。


业务合作&技术交流
联系人:危雅乐
联系电话:13871561963
