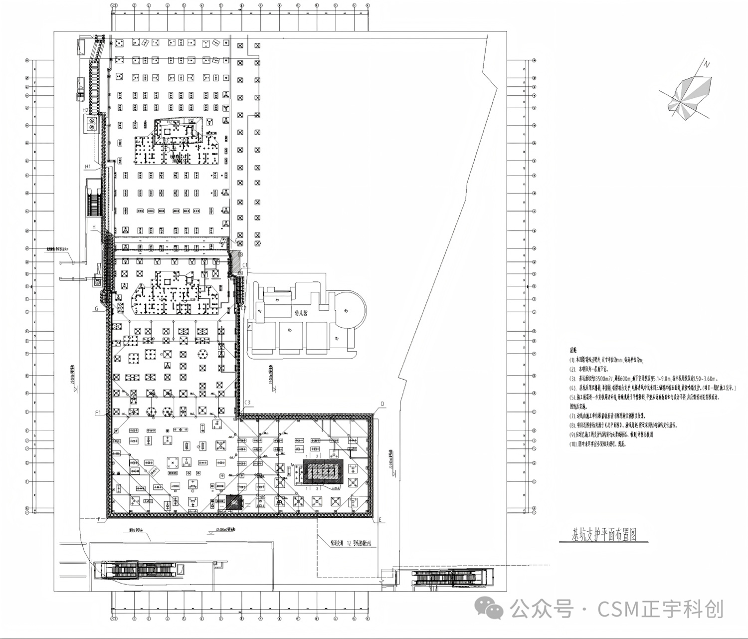
近日,我们正式启动铁机村城中村改造(武汉保利城四期-B区南片)项目的基坑止水帷幕工程。本项目基坑面积约13500m²,周长600m,基坑最大开挖深度13.4m。

本项目紧邻武汉轨道交通12号线已建车站(团结大道站),该车站距离项目基坑地下室外墙仅13.1米。武汉市内对临近地铁项目基坑降排水有着严格的要求,基坑止水帷幕的施工质量至关重要,本项目通过多轮工艺比选,最终选用CSM落底式等厚度水泥土搅拌墙作为止水帷幕。


正宇科创将秉承“因为专注,所以专业,用心做好每一幅墙”的企业理念,以施工质量为核心,为业主及甲方交出一份满意的答卷。

业务合作&技术交流
联系人:危雅乐
联系电话:13871561963
